


Jumping Jack
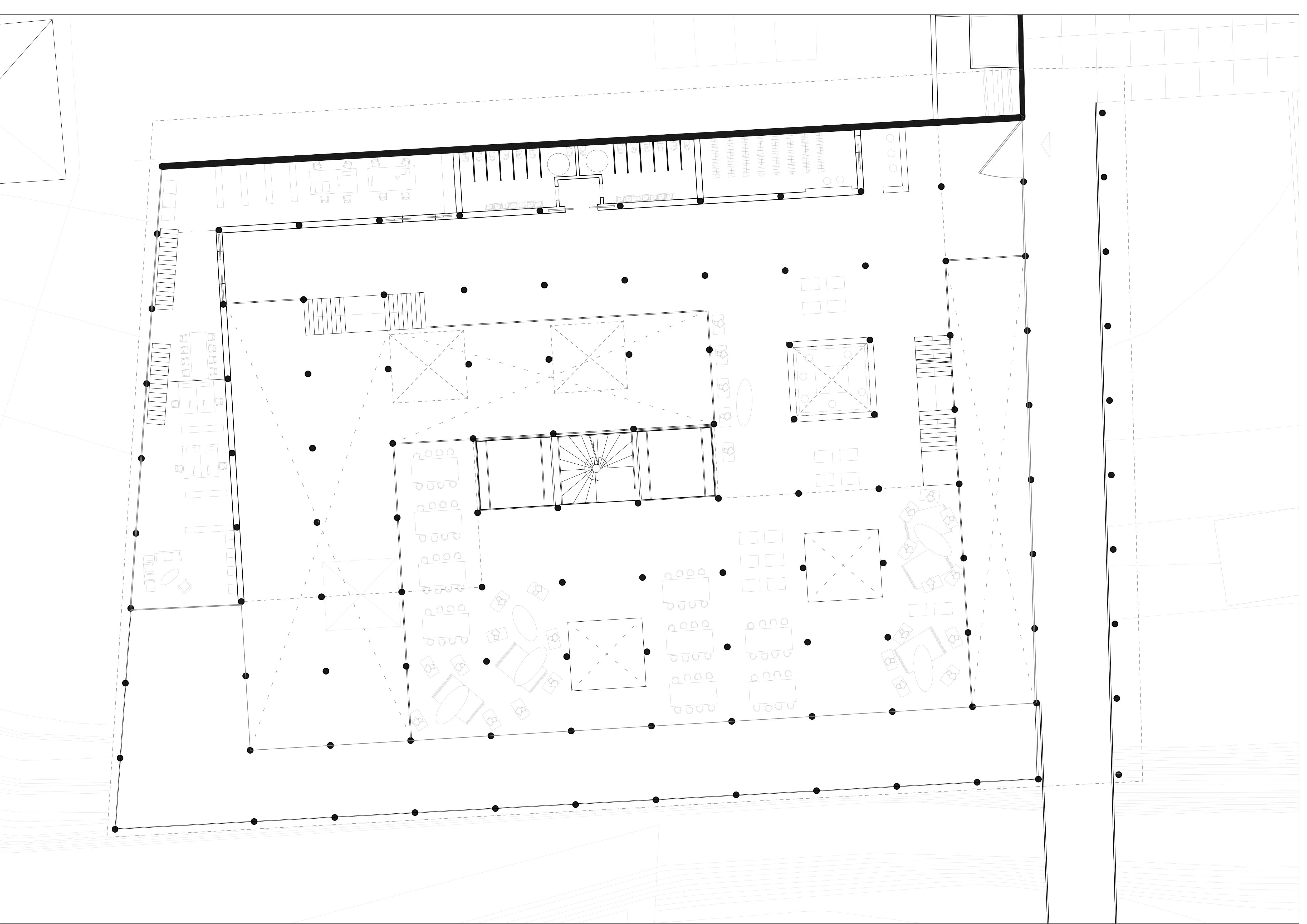
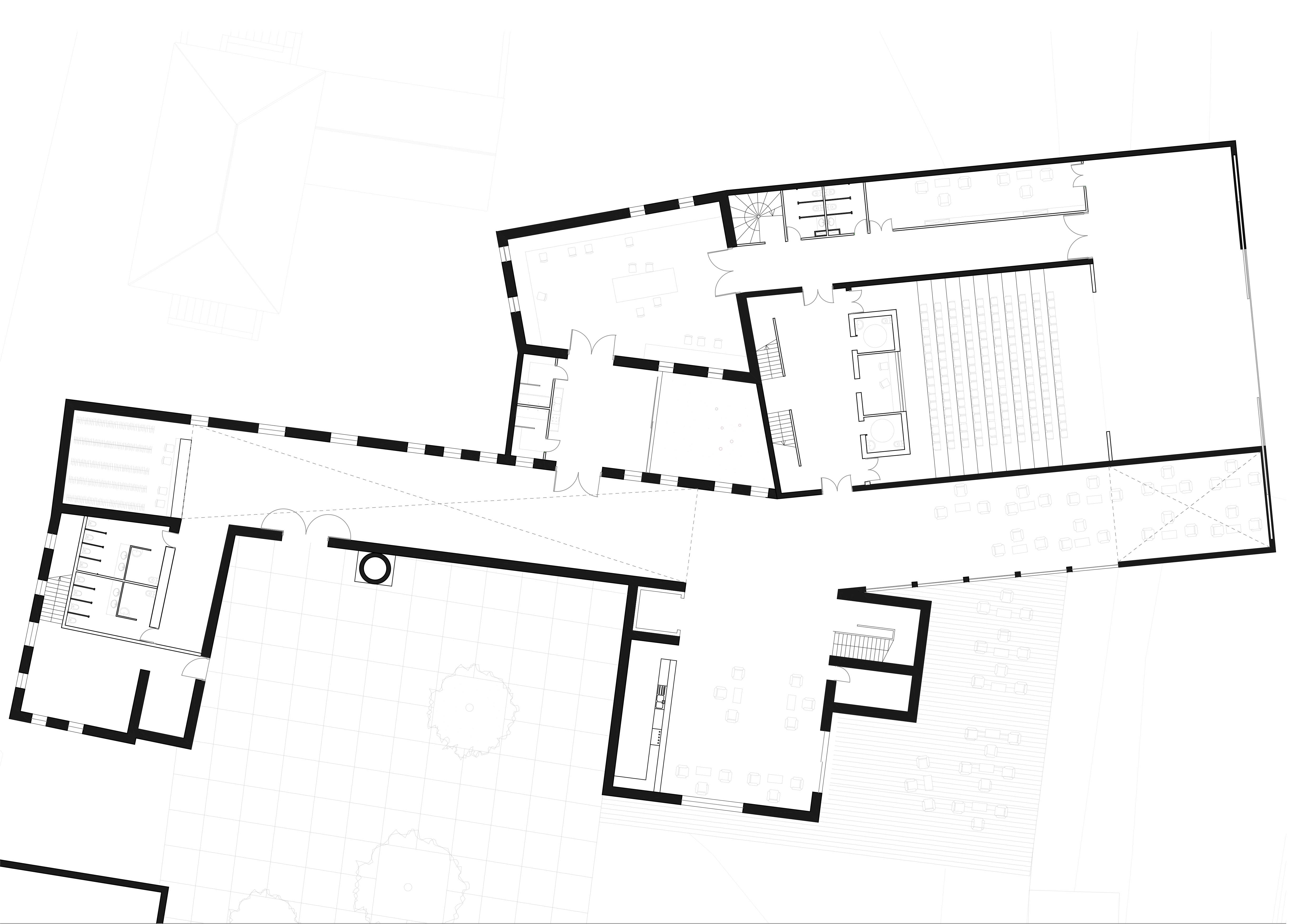
Concours pour la bibliothèque de la ville de Collodi en Italie. Projet imaginé avec les architectes scénographes Simon Vallery et Roland Fontaine.
Le site urbain de 250 000m2 tend à raconter au public une fable à travers l’architecture. Les bâtiments sont étudiés avec des systèmes de coulisses, de rotations, de décalages et d’imbrications comme les articulations d’une marionnette. La superposition, la succession d’images et la connexion des éléments urbains permettent au public de s’approprier l’architecture et le rendre acteur d’une fable. Une place centrale permet d’accéder à l’ancienne manufacture de papier devenue auditorium et café et conduit également à la bibliothèque. Dans le prolongement de la place, une passerelle conduit à l’ancienne serre agricole réhabilitée en espace d’exposition et salle de workshop.












